Reveal / Heirloom House kitchen

The kitchen in this home was always going to be more than just a functional space because of the special family who live here. It’s where they naturally gather for morning coffees, long lunches, conversations with friends, tea rituals and everything in between. The brief was to design a hardworking, handsome kitchen that 'wasn't too girly' (hubby's words!). My clients also wanted a design that felt calm, grounded, connected to nature and timeless, plus had premium appliances and all the bells and whistles to cater for their love of hosting, cooking, entertaining and filling the space with family, friends and laughter.

Warm oak cabinetry forms the backbone of the space, bringing softness and tactility. We fell in love with the stone because the pattern and colours mimic nature - it reminded us of an aerial photo of the ocean or a rivermouth. Plus being a quartzite, it's incredibly hardworking which was a prerequisite. I also designed a ‘star’ shape on the cabinetry, inspired by the family heritage - traditional Dutch stars appear on barns throughout Holland. Below are all the details, products and materials used to bring this heart of the home to life.

The heart of the home, designed for real life - generous, grounded, hardworking and handsome! (Including extra roomy stools as requested by hubby).

Get the Look

Warm oak joinery for the tall spaces teamed with lacquered cabinetry for the under-bench spaces creates contrast, while bringing both earthy and modern tones in for a softer, more tactile look.

Get the Look

The bar adjoining the kitchen is a place for everyday breakfasts, tea and coffee, smoothie creations and all manner of cocktails! The ‘star’ design on the cabinetry was inspired by the family heritage and traditional Dutch stars that appear on barns in Holland.

Get the Look

We didn’t want to break up the beautiful timber cabinetry opposite with appliances, so we created an oven stack that makes an efficient work triangle with the cooktops and fridge.

Get the Look

Dutch antiques sit on brass shelves, layering more family heritage into the heart of the home.

Get the Look

A gas hob, induction hob, teppanyaki suite and extraction are all seamlessly built into the stone benchtop.

Get the Look

  • Cooktops (CombiSet): Miele CS 7612 FL (ceramic), Miele CS 7102-1 FL (CombiSet), Miele CS 7632 FL (Induction Tepan Yaki) — miele.co.nz
  • Ventilation: Gaggenau 400 Series Table Ventilation (AL400122) + Remote Fan Unit (AR403122) — via Kouzina — kouzina.co.nz
  • Stone fabrication: SCE Stone & Design — scestone.co.nz

All the appliances including the dishwasher, fridge, and bar fridge are integrated meaning the fronts are the same as the other cabinetry to keep the space calm and cohesive.

Get the Look

  • Sink mixer: Nero “Opal” Pull-Out Sink Mixer — nerotapware.co.nz
  • Sinks: Blanco Subline Undermount (main + prep) — blanco.com
  • Dishwasher: Miele G 7164 SCVi (integrated) — miele.co.nz
  • Beverage centre: Fisher & Paykel RS6009SBL1 (integrated) — fisherpaykel.com

A French door fridge, pantry and appliance cupboard hidden behind architectural joinery, with touch to open storage cupboards at the top.

Get the Look

  • Fridge freezer: Liebherr ECBN 6256 PremiumPlus BioFresh NoFrost (integrated) — via Kouzina — kouzina.co.nz
  • Full appliance suite: Miele (ovens, warming drawer, dishwasher, cooktops) — miele.co.nz
  • Drawer systems: Legrabox by Blum — blum.com

Alternative layouts

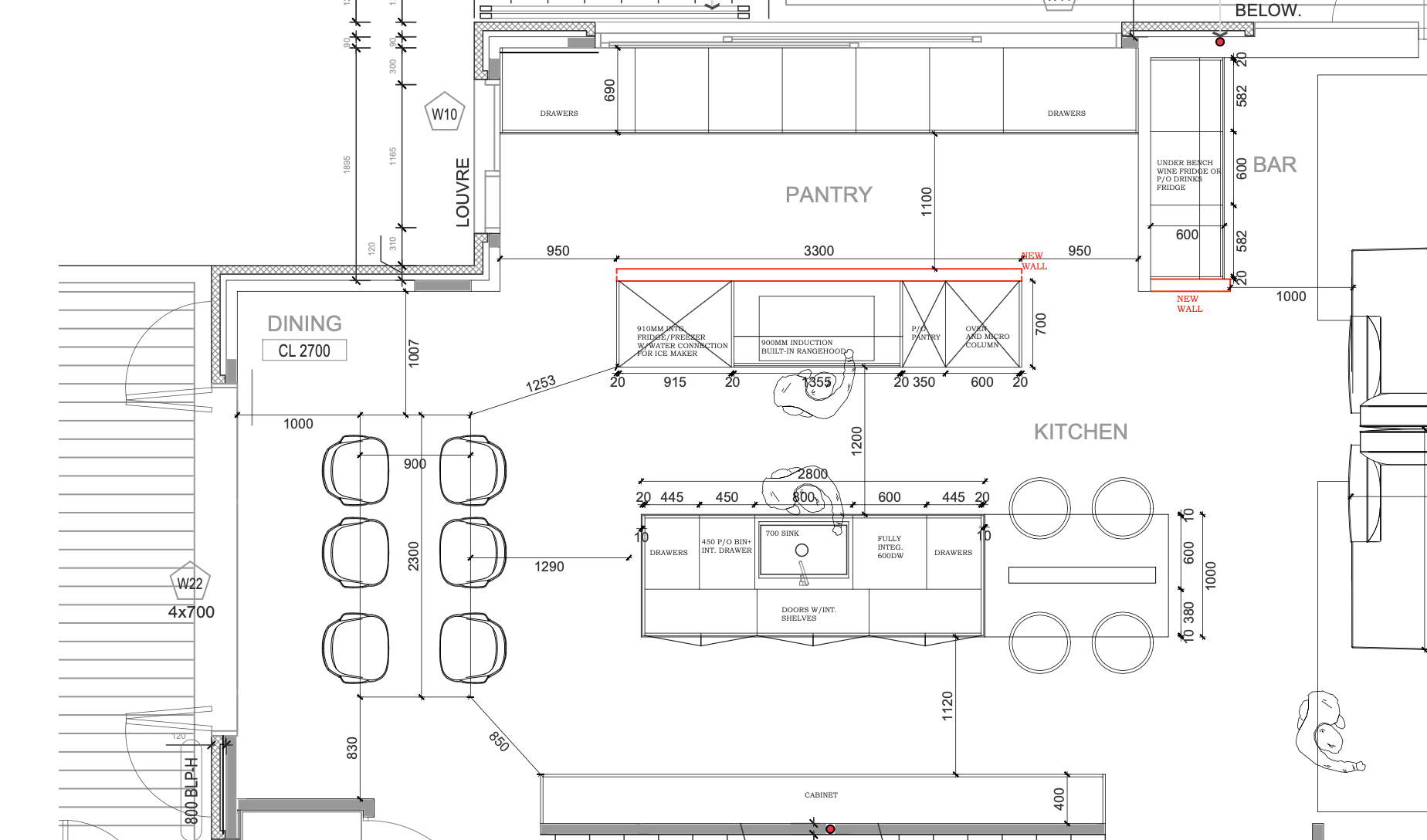
I also wanted to show you the other layouts we designed and considered with the client. We always play around with all potential layouts, as it allows clients to visualise different ways the space can be used that they may not have considered.

Option One

This option featured a huge walk in scullery behind a full height ‘cooking’ back wall, with an island in front. We decided it encroached too much on the thoroughfare between the living and dining areas, and felt too ‘forward’.

Option Two

This option was more open with the island turned, to achieve a larger standalone island looking towards the view. We decided we didn’t want the island turned - it feels more natural the other way.

Option Three

This was the chosen design. We joined the island to the main kitchen so that return could be longer, achieving more workable space. Then we could push the dining space into the centre of the area, creating room for a breakfast bar off to the left of the kitchen. Winner winner chicken dinner!

Next
Next

Guest House Renovation / Special Touches That Make Guests Feel at Home